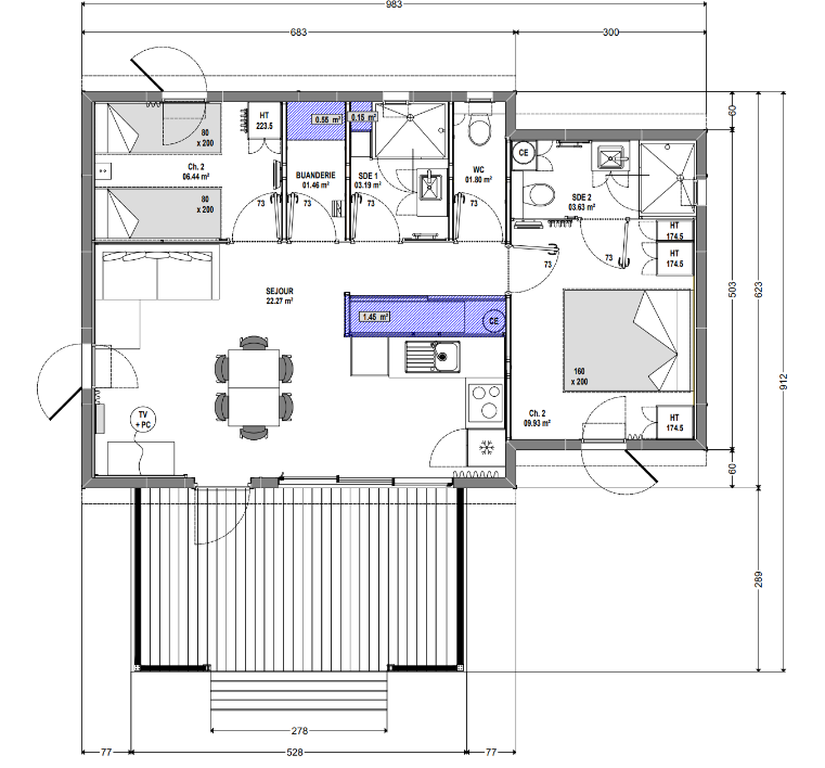
Résidence 51-2 F - 2 salles d'eau
Optimisation des espaces
Découvrez tous les atouts de la gamme Résidence, offrant 49m² d'élégance avec une terrasse en façade. La salle de douche et les WC sont séparés par un couloir, offrant une meilleure organisation.
49 m2
Surface
2
Chambre(s)
2
Salle(s) de bain
4/6
Personnes












