Résidence 51-2-P

Aménagement fonctionnel

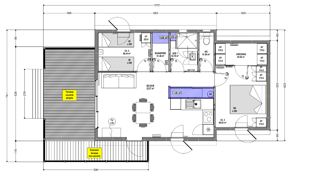
la profondeur avec une très belle terrasse en pignon. Une vaste buanderie. Des placards toute hauteur qui filent le long du couloir.

49 m2
Surface
2
Chambre(s)
1
Salle(s) de bain
4/6
Personnes

 

Découvrir nos catalogues

Vous préférez recevoir nos catalogues Sunshine Mobil-homes, Sunshine Chalets et Sunshine Lodges pour les feuilleter tranquillement chez vous ?

Cliquez sur « Recevoir nos catalogues » et complétez le formulaire ou téléchargez-les en PDF et consultez-les en ligne en cliquant sur « Télécharger le catalogue ».

Recevoir nos catalogues

Dans la même gamme découvrez aussi