Village 42-2
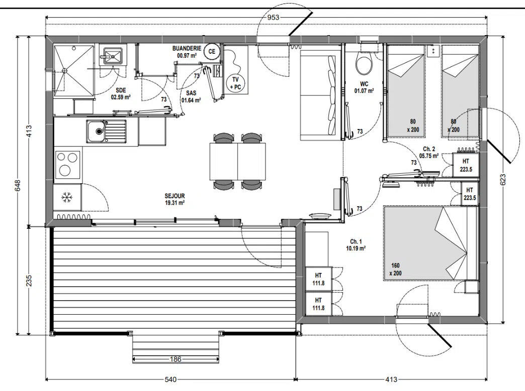
Une buanderie pour tous
La terrasse couverte prolonge la pièce de vie pour devenir une pièce à part entière. La buanderie et les placards sont étudiés pour 4 personnes.
42 m2
Surface
2
Chambre(s)
1
Salle(s) de bain
4-6
Personnes
























