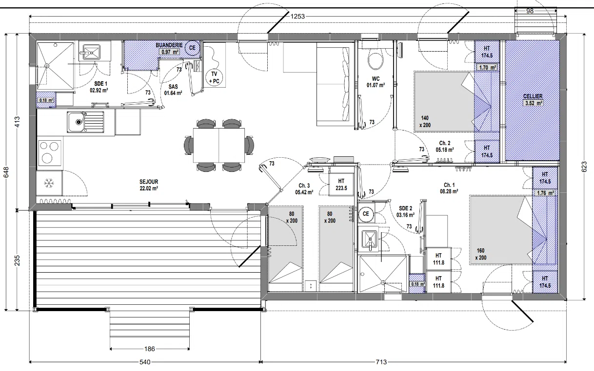
Village 58-3 + 2 SDE/cellier
Des pièces de vie lumineuses
La cuisine donne un accès direct à la terrasse. Le salon est un espace cosy et convivial. 2 salles d’eau maximisent le confort et l’autonomie de tous.
58-3 -bacs acier (2 sdb + cellier)
58-3-pergola (2 sdb + cellier)
50 m2
Surface
3
Chambre(s)
2
Salle(s) de bain
6-8
Personnes

























