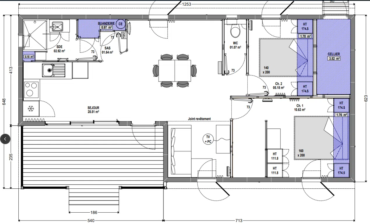
Village 58-2 + cellier
Des pièces de vie lumineuses
La cuisine donne un accès direct à la terrasse. Le salon est un espace cosy et convivial. 2 salles d’eau maximisent le confort et l’autonomie de tous.
50 m2
Surface
3
Chambre(s)
2
Salle(s) de bain
6-8
Personnes

























