Village 45-2 cellier 3
Son cellier un vrai plus !
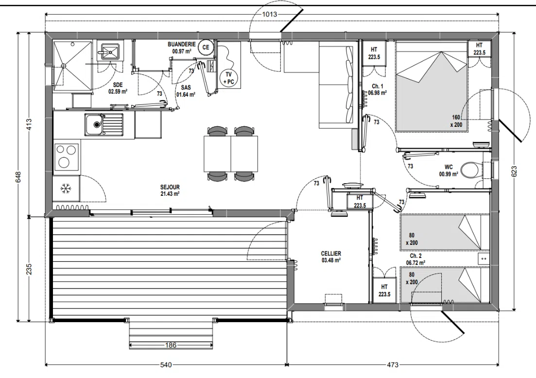
La cuisine donne un accès direct à la terrasse. Le salon est un espace cosy et convivial. La buanderie et placards ont été étudié pour 4 personnes !
45 m2
Surface
2
Chambre(s)
1
Salle(s) de bain
4-6
Personnes






















