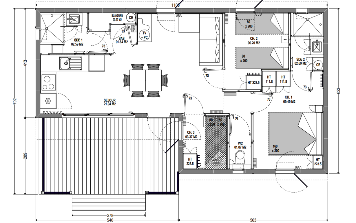
Village 50-3 + 2 sde
Parfait pour des familles nombreuses ou groupes
3 chambres pour les grandes familles ou les nombreux amis. Les rangements et la buanderie sont étudiés pour 6 personnes. Le séjour central est spacieux et ouvert sur l’extérieur.
50 m2
Surface
3
Chambre(s)
2
Salle(s) de bain
6-8
Personnes






















